neubau
sanierung / umbau
ausbau
wettbewerbe
büro projekte kontakt links impressum
oliver stolzenberg architekt bda
villa minna
haus malerstraße
tu chemnitz I
tu chemnitz II
mpi dresden / krippe
haus uhlandstraße II
umbau fichtenstraße
mpi dresden / laborumbau
scheune in reick
villa liehrstraße
villa an den schlössern
werkstattgebäude bienertmühle
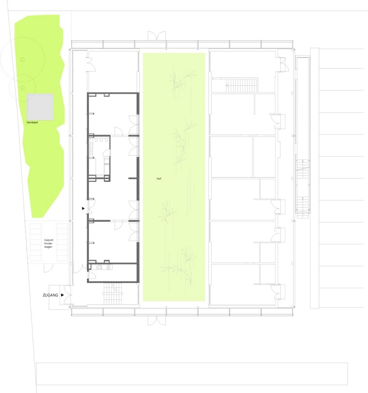
Kinderkrippe / Max-Planck-Institut
für molekulare Zellforschung Dresden
Entwurf 2005
Bauherr: Max-Planck-Gesellschaft
Das Erdgeschoß des MPI-CBG Gästehauses soll zu einer Mitarbeiterkita umgebaut werden.